Питають думку мешканців: в Івано-Франківську розробили нову схему на вулиці Грушевського

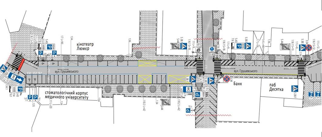
В Івано-Франківську розробили нову схему організації дорожнього руху по вулиці Грушевського.
Про це повідомив заступник міського голови й директор департаменту інфраструктури, житлової та комунальної політики Михайло Смушак, пише Фіртка.
За словами Смушака, головна мета — впорядкувати рух, паркування, підвищити безпеку та зробити вулицю зручнішою і доступнішою для людей з інвалідністю.
Так, проєкт передбачає:
  • антикишеня на перехресті з вул. Вагилевича — для кращої видимості та безпеки пішоходів;
  • пониження бордюру в районі ресторану «Десятка», а також нормативні відстані від припаркованих автомобілів до переходів;
  • місця для завантаження/розвантаження — для бізнесів, яких у центральній частині дуже багато.
Михайло Смушак зазначив, що є декілька дискусійних пропозицій, яких розроблена схема не передбачає, однак у міськраді цікавляться думкою мешканців.
Зокрема, обговорюють відновлення обмеження проїзду автомобілів по вул. Грушевського на ділянці від вул. Галицької до вул. Вагилевича у вихідні дні та святкові дні. За його словами, раніше така практика існувала, але її припинили через відсутність автоматичних елементів регулювання.
Також обговорюють обмеження транзиту через центр: або повне перекриття і перетворення вулиці Грушевського на пішохідну зону на ділянці від вулиці Галицької до вулиці Вагилевича, або створення закритої паркувальної зони — за прикладом вул. Шевченка (ділянка від вул. Січових Стрільців до вул. Гординського).
«Щодо закритої паркувальної зони, то тут принципова умова: така зона має бути виключно в управлінні КП «Сервіс паркування», а не приватних операторів — подібно до практики в центрі Львова», — додав директор Департаменту.

Фотогалерея


06.01.2026 Діана Струк 8167
Коментарі ()

10.04.2026
Павло Мінка

Як насправді виглядає ситуація з нелегальним гральним бізнесом в Івано-Франківській області? Фіртка отримала офіційну статистику від правоохоронних органів та регулятора азартних ігор ПлейСіті. Але перед цим — про проблему загалом, щоб на контрасті зрозуміти ситуацію в регіоні. 

2307 1
07.04.2026
Діана Струк

Як відновлюють Палац, навіщо місту фестивалі під час війни і яким стане цей культурний осередок через кілька років — про це Фіртці розповів директор Простору інноваційних креацій «Палац» Володимир Гайдар.

955
03.04.2026
Олександр Мізін

Підроблені акти, незаконні рішення рад і чорні реєстратори — основні схеми захоплення державних лісів у 2025-2026 роках.

2281 1
31.03.2026
Вікторія Матіїв

Журналістка Фіртки поспілкувалися з ректором ІФНМУ Романом Яцишиним про те, як сьогодні мотивують молодь вступати до медичних закладів, які зміни відбулися у географії студентів, як університет працює над тим, щоб випускники залишалися працювати в Україні, а також про виклики, які стоятимуть перед українською медициною після завершення війни.

5305 1
27.03.2026
Павло Мінка

У публічних закупівлях за бюджетні кошти нерідко трапляються ситуації, коли тендери проводять лише формально. Компанії, які виглядають конкурентами, насправді можуть діяти за попередньою змовою.    

4119 1
23.03.2026
Тетяна Дармограй

В інтерв’ю журналістці Фіртки Руслан Павлов розповів про перші бої та втрати побратимів, мотивацію добровольців і мобілізованих, розрив між фронтом і тилом, а також про те, як війна змінює сприйняття життя і плани на майбутнє.

5210

На програмній зустрічі на початку 2023 року Сєргєй Кірієнко виклав чотири цілі для російської когнітивної війни проти України - дискредитація військово-політичного керівництва України, розкол українців, розкол української еліти, деморалізація українських військ.

746

В євангельському описі останніх днів земного життя Ісуса Христа ми зустрічаємо імена постатей, які прямо або опосередковано мали відношення до Страстей Христових. 

645

Наближається пора, коли після зимової сплячки повилазять змії.

1465

Згідно Книги Пророка Ієзеркіля (книги 38, 39) «Остання Битва Кінця» має відбутися між Ізраїлем та «Гогом з землі Магог (Півночі) та полчищами персів, ефіопів і лівійців при ньому».

4330
07.04.2026

Великдень цьогоріч відзначатимуть 12 квітня. Яким має бути традиційний великодній кошик і що не варто нести до церкви — пояснив священник.

9232 1
02.04.2026

Здоров’я кишківника є надзвичайно важливим для загального самопочуття. Правильна робота травної системи впливає не лише на обмін речовин, але й на імунітет, настрій і навіть стан шкіри.  

6081 1
27.03.2026

Перекуси між основними прийомами їжі потрібні не лише для втамування голоду, а й для підтримки енергії, концентрації та загального самопочуття.

6714
06.04.2026

В Івано-Франківській області відбулася перша екскурсійна поїздка для родин загиблих захисників та зниклих безвісти військових. Ініціативу організувала Івано-Франківська обласна військова адміністрація.  

1010 1
04.04.2026

У неділю, п'ятого квітня, у храмах Івано-Франківська освячуватимуть вербові галузки.  

1962 1
30.03.2026

Розважання над кожною стацією Хресної дороги були глибоко пов’язані з сучасними подіями в Україні та особливо відчувалися у контексті війни.  

1585
28.03.2026

Згромадження Сестер Пресвятої Родини, засноване в 911 році сестрою Теклею Юзефів, вже понад тисячу років працює з людьми, навчає дітей та підтримує громаду.  

8448
03.04.2026

Уже цих вихідних, 4–5 квітня, Івано-Франківський національний академічний драматичний театр імені Івана Франка представить прем’єру вистави «Маруся Чурай» за однойменним романом у віршах Ліни Костенко.

1297
08.04.2026

Банальна приказка каже, що «безкоштовний сир буває лише в мишоловці». Тобто, що немає ніде, включно з економікою нічого безкоштовного. Завжди хтось буде змушений заплатити.

560
07.04.2026

ISW звертає увагу на те, що російські мілітарні блогери критикують неефективність російських систем протиповітряної оборони та наголошують на впливі українських ударів.

508
03.04.2026

Не лише Україну «здав» Росії Байден, як про це ширилися чутки в політичних залаштунках, на зустрічі з Путіним в Женеві влітку 2021 року, а й загалом НАТО готувало здачу Росії, окрім України, ще й під «сіру зону» країни Балтії, Польщу та інші постсоціалістичні країни сходу Європи!

1521 1
30.03.2026

Нещодавно керівник німецького оборонного концерну, глава Rheinmetall Армін Паппергер назвав виготовлення українських дронів «грою в Lego домогосподарок з 3D-принтерами».

1107